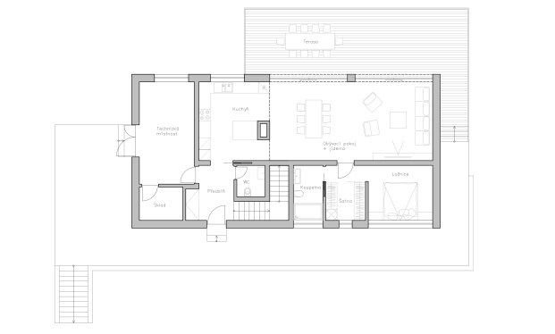
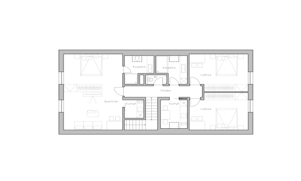
RD Říčky

Function: Housing

Location: Říčky v Orlických horách

Area: 205 m²

Year: 2018

Description: Concept of a minimalistic family house without a cellar, arising from the basic mass of the simple historic cottages with rectangular ground plan, that are characteristic for the local architecture. This design combines traditional materials of wood and stone and the plot slopes southwards to the valley below, enabling for panoramic sights through the glass façade used in the project.


Other family houses